欢迎光临 : 上海闵邦电力科技有限公司 官网!
邮箱:245589194@qq.com 服务热线:15067800862

|
主要用途
|
||||||||||||||||||||||||||||||||||||||||||||||||||||||||||||||||||||||||||||||||||||||||||||||||||||||||
|
FN25-12D真空负荷开关和FN25-12DR组合电器主要用于12KV三相交流50Hz环网或终端供电的市区配电站和工业用电设备中,做负荷控制和短路保护用,由于组合电器对变压器等电器设备的保护使用比断路器更可靠,特别适用于环亡,双辐射供电单元和箱式变电站。
|
||||||||||||||||||||||||||||||||||||||||||||||||||||||||||||||||||||||||||||||||||||||||||||||||||||||||
|
主要用途
|
||||||||||||||||||||||||||||||||||||||||||||||||||||||||||||||||||||||||||||||||||||||||||||||||||||||||
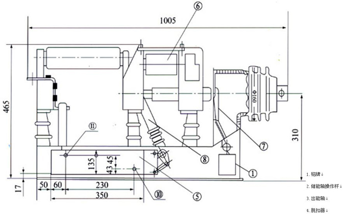
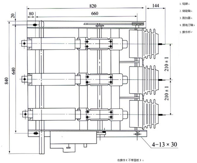
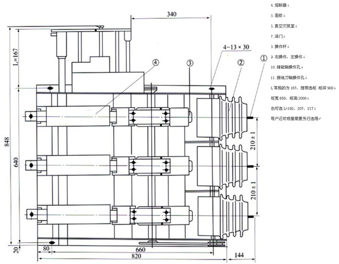
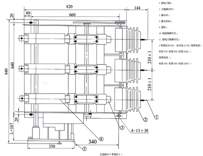
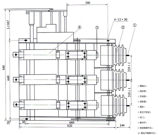
外形图
右操作(带面板)
|
||||||||||||||||||||||||||||||||||||||||||||||||||||||||||||||||||||||||||||||||||||||||||||||||||||||||