欢迎光临 : 上海闵邦电力科技有限公司 官网!
邮箱:245589194@qq.com 服务热线:15067800862

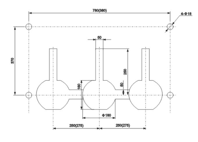
GN22-12(C)型隔离开关适用于三相交流50Hz,额定电压12KV的户内装置。供高压设备的有电压 而列负荷载的情况下接通,切断或转换线路之用。
海拔:不超过1000m;
周围空气温度:-30 +40;
周围环境相对湿度:日平均不大于95%;
月平均值不大于90%。地震强度不超过8级
安全场所:没有火灾,易燃,易爆,严重污秽,化学腐蚀及剧烈振动场所。
|
项目 |
单位 |
数据 |
||
|
额定电压 |
KV |
12 |
||
|
额定功率 |
Hz |
50 |
||
|
额定电流 |
A |
1600 200 |
2500 3150 |
|
|
额定短路耐受电流 |
KA |
40 |
50 |
|
|
额定峰值耐受电流 |
KA |
100 |
125 |
|
|
额定短时持续时间 |
S |
4 |
||
|
额定绝缘水平 |
工频耐受电压 |
KV |
极间,极对地42断开口49 |
|
|
雷电冲击耐受电压(峰值) |
KV |
极间,极对地75断开口85 |
||
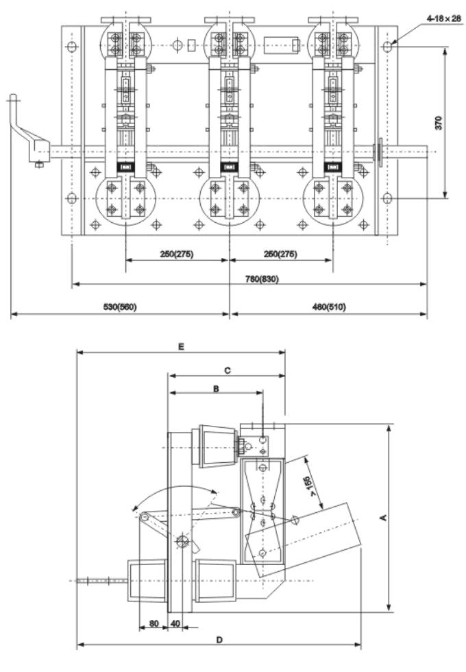
|
型号 |
A |
B |
C |
D |
E |
|
GN22-12/1600-2000 |
255 |
305 |
527 |
490 |
50 |
|
GN22-12/2500-3150 |
262 |
325 |
538 |
494 |
60 |
|
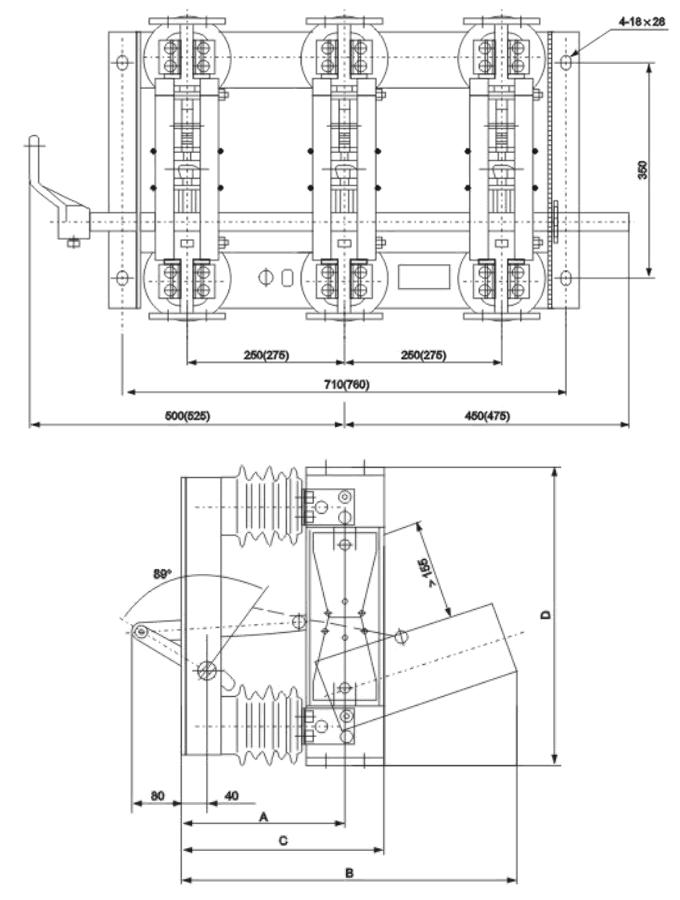
型号 |
A |
B |
C |
D |
E |
|
GN22 |
537 |
255 |
305 |
807 |
580 |
|
GN22 |
539 |
267.5 |
330 |
880 |
630 |