欢迎光临 : 上海闵邦电力科技有限公司 官网!
邮箱:245589194@qq.com 服务热线:15067800862

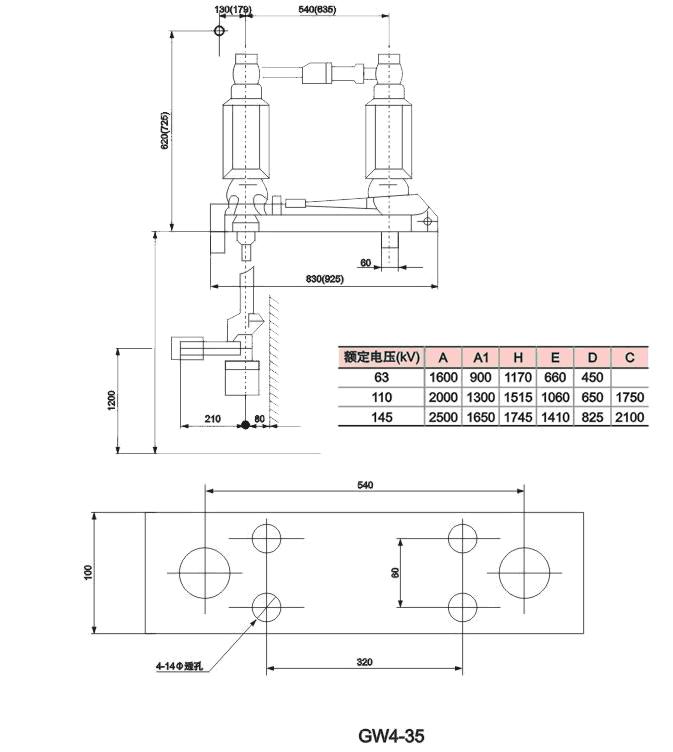
GW4-17.5(40.5)系列户外隔离开关适用装置在户外交流50Hz。额定电压分别 为17.5KV和40.5KV电力系统中,供线路在有电压 无负载时作为开合电路之用。产品符合GB1985及其他相关标准要求。
海拔不超过3000m;
环境温度上限为+40℃,下限-25℃;
风速不超过35m/s;
无导电或起化学作用气体和蒸汽的场所;
无火灾 爆炸危险的场所(污秽等极不超过Ⅲ极);
地震烈度不超过8度。
|
型号 |
额定电 |
额定电流 |
峰值耐受 |
4秒短时耐受 |
|
GW4 -17.5 |
17.5 |
200 |
40 |
16 |
|
400 |
50 |
20 |
||
|
630 |
50 |
20 |
||
|
1000 |
63 |
25 |
||
|
1250 |
63 |
25 |
||
|
GW4 -40.5(D) |
40.5 |
400 |
50 |
20 |
|
630 |
50 |
20 |
||
|
1000 |
63 |
25 |
||
|
1250 |
80 |
31.5 |
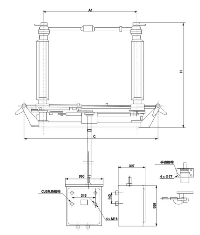
隔离开关由底座.绝缘支柱及导电部分以及操动机构等组成。每极有两个支柱, 每个支柱上端各装有导电闸刀.两部分闸刀触头接触处在两支柱的中间部位。 支柱的下端各装有轴承套,在操动机构的带动下,可使闸刀作水平旋转90度,从而达到分合闸之要求。隔离开关为单极 型,也可通过连杆将三极连成能够联动的三极型式。配用CS11(不接地)CS8-6D(单接地) CS17(双接地)型手动机构操作。(可根据需要配电动机构)从上述结构简介中不难看出,本隔离开关结构合理,操动灵活自如;可单极,也 可三极使用,安装方便;触也开距大,绝缘安全可靠。还可根据用户需要,不接地或配装单边接地或双接地均可。